yes Stonewater, shared ownership, affordable housing, Alcester, Warwickshire Skip to main content

Plot 115, Alcester Park, Allimore Lane, Alcester, Warwickshire B49 5EH

Click image to enlarge
Shared Ownership
  • 3 bedroom house - artist's  impression subject to change
    3 bedroom house - artist's impression subject to change
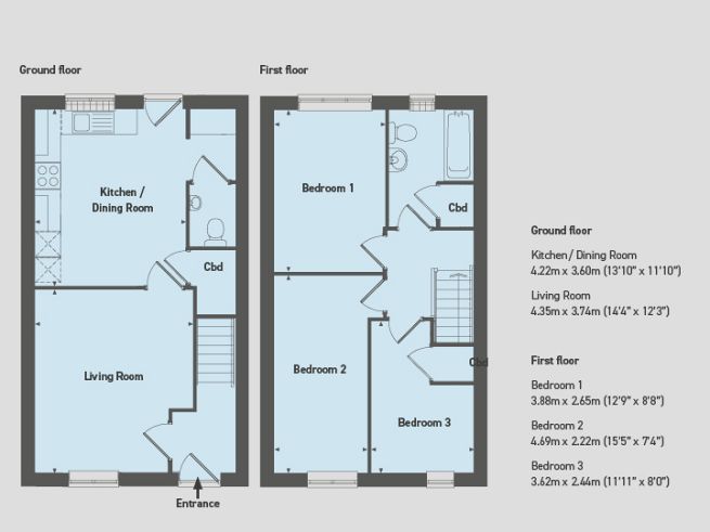
  • Floor plan, 3 bedroom house  - artist's impression subject to change
    Floor plan, 3 bedroom house - artist's impression subject to change
  • Site plan - artist's impression subject to change
    Site plan - artist's impression subject to change

Please note that all sales particulars and images are for marketing and illustrative purposes only. Plans, computer generated images and photos may contain elements which are not present upon the final completion of the property.

available

Plot 115, Alcester Park, Allimore Lane, Alcester, Warwickshire B49 5EH

  • 11 Malin Close, Alcester, Warwickshire B49 5RP
  • 3 bedroom end of terrace house, allocated parking, turfed rear garden

    £128,000 for a 40% share

    Open Market Value: £320,000

    Monthly Rent: £440.00

    Service Charge: £38.12

    Available on Shared Ownership 1

Plot 115, Alcester Park, Allimore Lane, Alcester, Warwickshire B49 5EH

Please note that all sales particulars and images are for marketing and illustrative purposes only. Plans may contain elements which are not present upon the final completion of the property. All room dimensions are approximate and are for general guidance only.

Stonewater, as a responsible Landlord, takes the safety of all of our customers seriously. During the process of purchasing shares in your home, we want to make sure you have considered how you will evacuate the home in the event of a fire. Please make sure you have fully considered the suitability of the property for you and all household members and ensure you have considered how you will evacuate quickly and safely in the event of a fire. If you require any support from Stonewater, please let us know.

Interested in buying a shared ownership home? Follow our simple three step guide     Find out more about shared ownership

Featured Development
12 Whitley Grove, Stratford Upon Avon property image
Featured Development
Stratford upon Avon, Stratford upon Avon property image